Leave a Message

Thank you for your message. We will be in touch with you shortly.

See all photos
Sarah Nolan

3237 S Bannock Street

$775,000 3237 S Bannock Street, Englewood, CO 80110
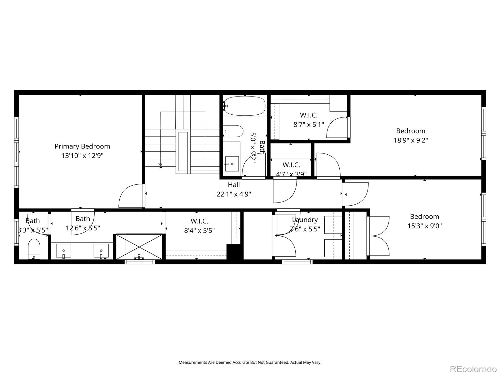
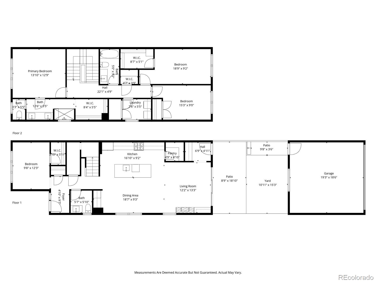
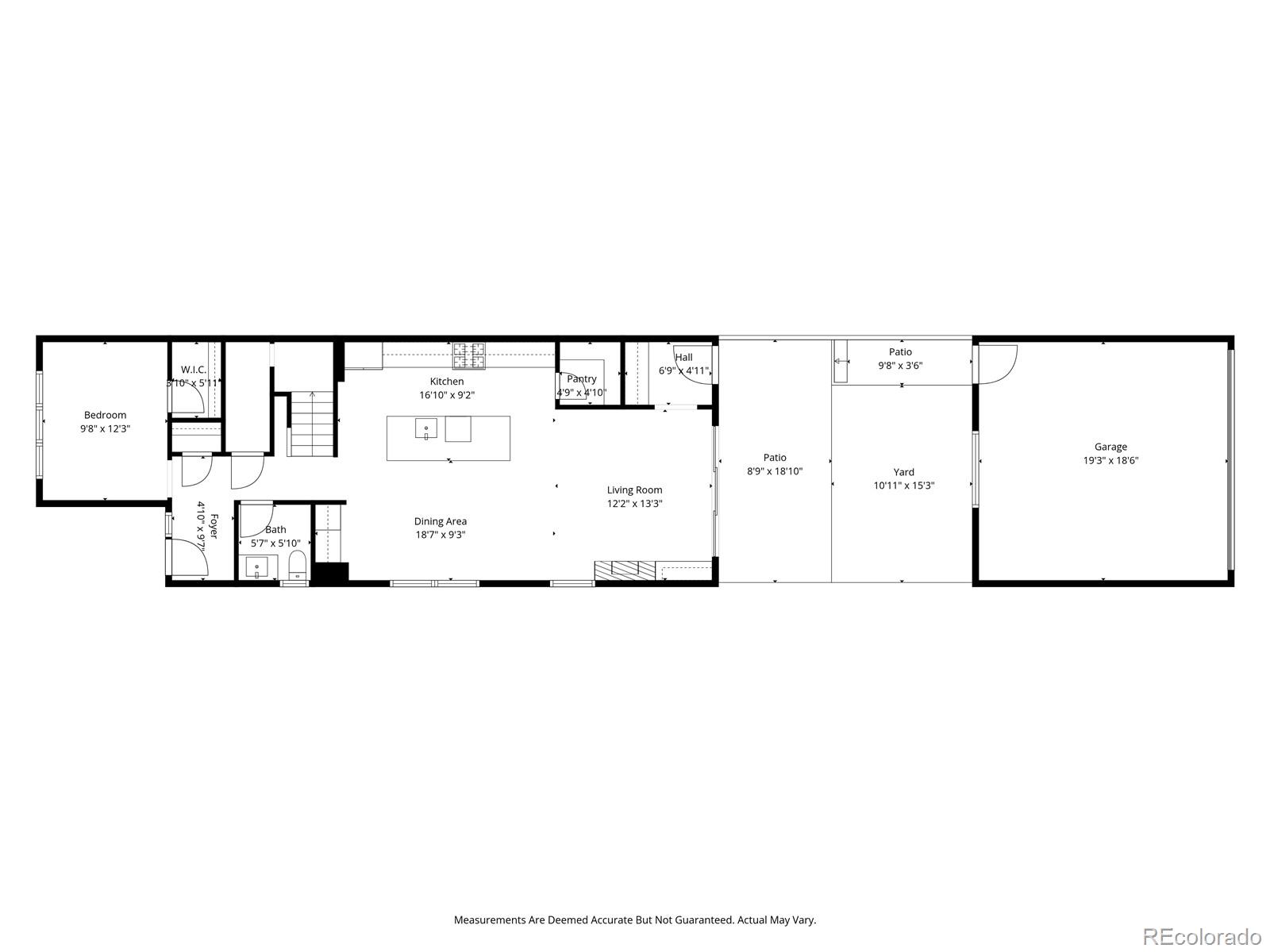
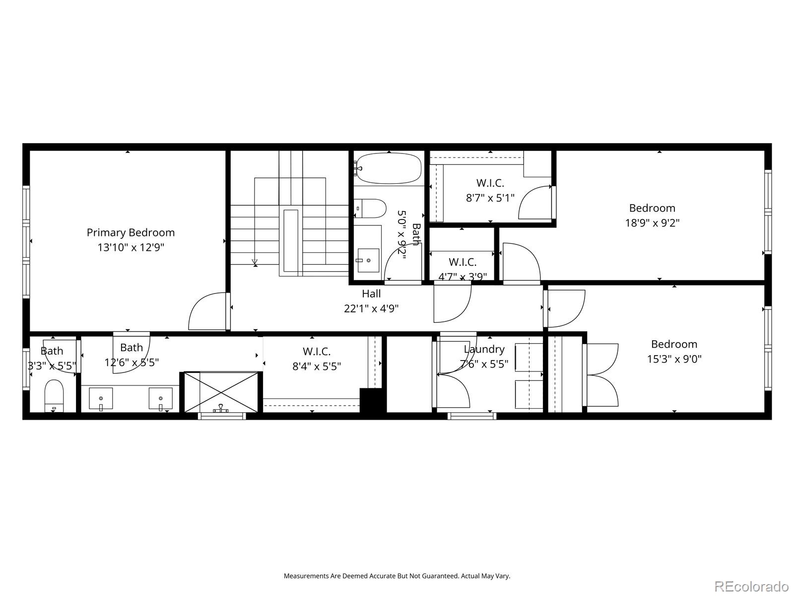
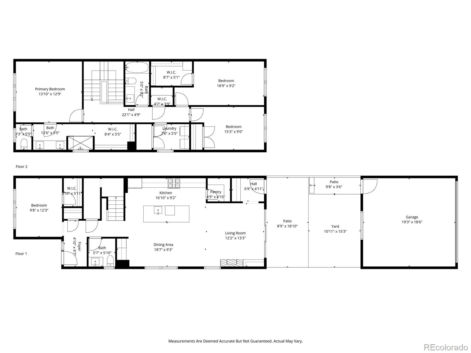
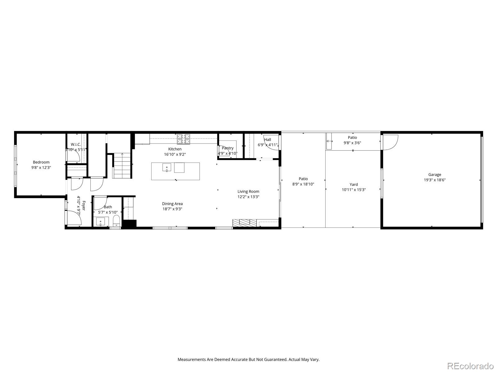
Welcome to this better-than-new half duplex in the heart of Overland, just minutes from Platt Park. Thoughtfully designed with a superior floor plan and timeless, elevated finishes, this home stands out among similar properties. From the moment you arrive, the modern curb appeal and professional landscaping make a lasting impression. Step inside to a welcoming entryway--perfect for greeting guests or slipping off your shoes--before entering the bright, open-concept living, dining, and kitchen area. Beautiful dark engineered hardwood floors, expansive windows, and light cabinetry create a striking yet inviting aesthetic. Custom high-end window treatments add a refined touch. The main level also features a versatile office or nonconforming fourth bedroom, a powder room, a convenient mudroom, and sliding doors that lead to the private backyard with new turf and a two-car garage. Upstairs, you'll find three spacious bedrooms and two full bathrooms. The primary suite offers a luxurious retreat with a spa-like bath featuring dual sinks and a generous walk-in closet. Secondary bedrooms are equally well-appointed, sharing a stylish full bathroom. All bedrooms are finished with premium wool carpeting for an added sense of comfort. A laundry room, with washer and dryer included, on this level as well for extra ease. Two car garage completes this property. Situated in a neighborhood with incredible access to Denver's hottest destinations--and with no HOA--this home offers both lifestyle and lasting value.
  • For Sale
    Status
  • 4
    Bedrooms
  • 3
    Bathrooms
  • 2020
    Year Built
  • 1,988 Sq.Ft.
    Living Area

Features & Amenities

Area & Lot

  • Status: For Sale
  • Living Space: 1,988 Sq.Ft.
  • Total Area: 1,988 Sq.Ft.
  • Lot Size: 3,125 Sq.Ft.
  • MLS® ID: 7078655
  • Type: Residential
  • Year Built: 2020
  • Architecture Styles: Contemporary
  • View Description: Mountain(s)
  • Elementary School:Bishop
  • Middle School: Englewood
  • High School: Englewood
  • School District: Englewood 1

Interior

  • Total Bedrooms: 4
  • Total Bathrooms: 3
  • Full Bathrooms: 1
  • Three Quarter Bathrooms: 1
  • Half Bathrooms: 1
  • Flooring: Carpet, Tile, Wood
  • Fireplace: Gas, Living Room
  • Appliances: Dishwasher, Disposal, Dryer, Microwave, Range, Range Hood, Refrigerator, Washer, Wine Cooler
  • Other Interior Features: Built-in Features, Eat-in Kitchen, Entrance Foyer, High Ceilings, High Speed Internet, Kitchen Island, Open Floorplan, Pantry, Primary Suite, Quartz Counters, Walk-In Closet(s)

Exterior & Building

  • Stories: 2
  • Garage Space: 2.0
  • Water Source: Public
  • Utilities: Electricity Connected, Natural Gas Connected
  • Roof: Shingle, Membrane
  • Lot Features: Landscaped, Near Public Transit, Sprinklers In Front, Sprinklers In Rear
  • Heat Type: Forced Air
  • Air Conditioning: Central Air
  • Sewer: Public Sewer
  • Substructure: Concrete Perimeter
  • Security Features: Smart Locks, Video Doorbell
  • Other Exterior Features: Lighting, Private Yard, Rain Gutters

Financial

  • Sales Price: $775,000
  • Real Estate Tax: $3,768/yr
View Virtual Tour

3237 S Bannock Street

Work With Us

We are committed to advocating for your best interest throughout the buying and selling process. We will work hard for you to ensure that you have an exemplary experience, and our goal is to make the process of selling and buying a home as smooth as possible.
Contact Us
Follow Us